Coburg:
Klein, aber oho! Ihr neues City-Nest im Herzen von Coburg
Objekt-Nr.: 202601

IMG

IMG

IMG

IMG








mtl. Kaltmiete:
320 €
Wohnfläche ca.:
24 m²
Zimmeranzahl:
1
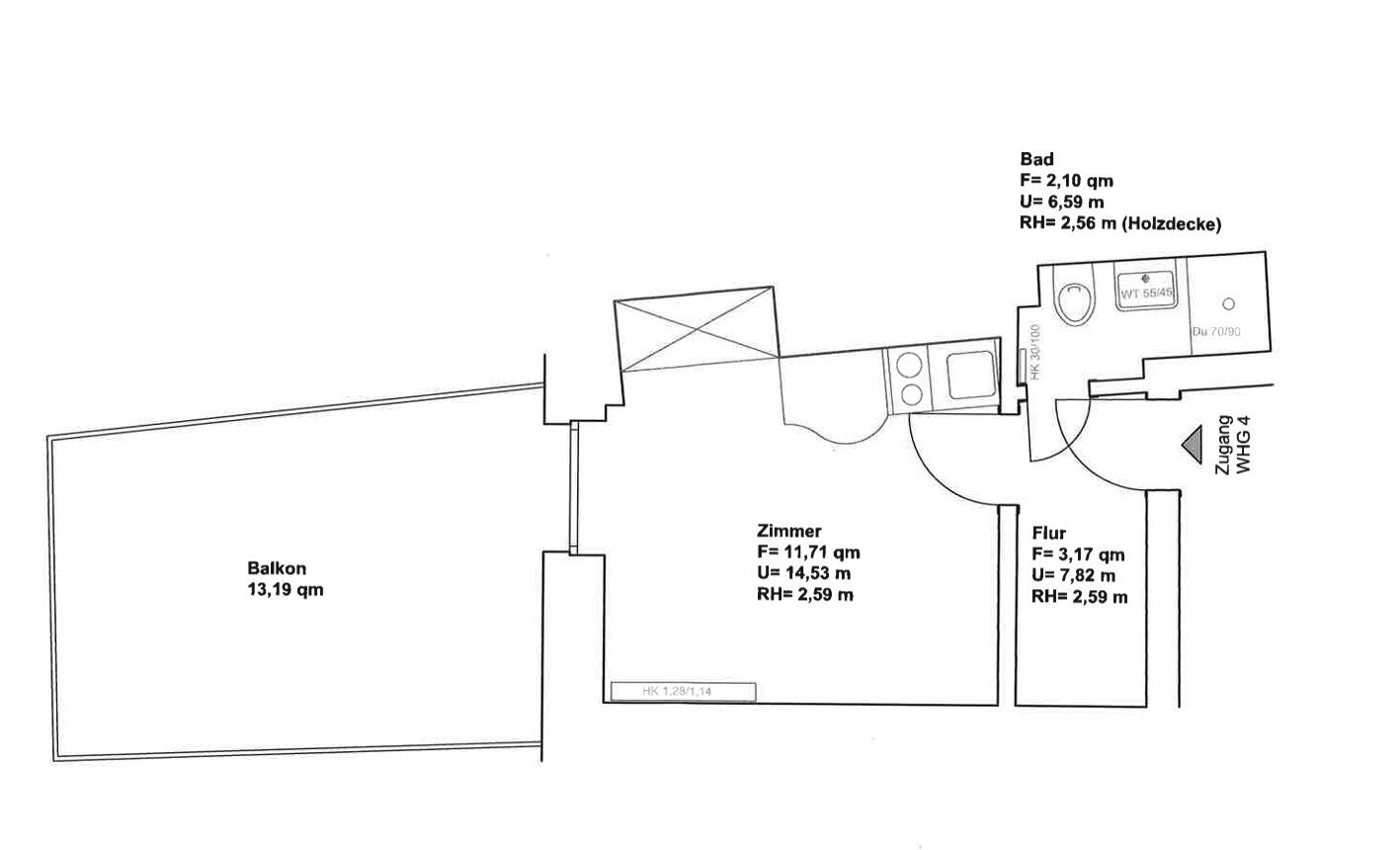
Willkommen in dieser außergewöhnlichen ca. 24 m² großen Wohnung direkt in der Theatergasse 1, im pulsierenden Herzen von Coburg. Diese Einheit im 2. Obergeschoss definiert „Urban Living“ neu und bietet ein Highlight, das man in der Innenstadt selten findet: Eine private Außenfläche, die den Wohnraum mehr als verdoppelt.
Objektbeschreibung & Highlights
Das Raumwunder: Das helle Zimmer ist mit ca. 12 m² effizient geschnitten und bietet durch das bodentiefe Fenster einen direkten Zugang zum Außenbereich. Die XXL-Terrasse: Das absolute Herzstück dieser Wohnung ist der ca. 13 m² große Balkon. Er bietet mehr Fläche als der eigentliche Wohnraum und wird im Sommer zum zweiten Wohnzimmer unter freiem Himmel – ideal für Urban Gardening oder zum Entspannen über den Dächern der City.…
Ausstattung: Die Wohnung verfügt über eine praktische Pantry-Küche und einen großzügigen Einbauschrank, der den vorhandenen Platz optimal nutzt. Der edle Bodenbelag in Holzoptik sorgt für ein modernes Ambiente.
Lage: Zentraler geht es nicht. Die Adresse Theatergasse 1 spricht für sich. Sie wohnen direkt am Puls von Coburg:Kultur & Freizeit: Das Landestheater und der Schlossplatz sind quasi Ihre Nachbarn. Cafés, Restaurants und Einkaufsmöglichkeiten liegen direkt vor der Haustür.
Anbindung: Ob zu Fuß zur Hochschule oder zum Bahnhof – von hier aus sind alle Wege kurz.
Fazit: Diese Wohnung ist perfekt für Individualisten, die das urbane Leben lieben und trotz zentraler Lage nicht auf eine großzügige private Außenfläche verzichten möchten.
Die Eckdaten auf einen Blick
Wohnfläche ca. 24 m² (inkl. anteiligem Balkon)
Zimmer (ca. 12 m²)
Balkon/Terrasse ca. 13 m² – Größer als das Zimmer!
Weitere Räume: Flur (ca. 3 m²) und Bad (ca. 2 m²)
Wohnungstyp: Etagenwohnung
Etage: 2
Etagenanzahl: 3
Warmmiete inkl. NK: 420 €
Nebenkosten: 100 €
Kaution / Genossenschaftsanteile: 660
Heizkosten: sind in den Nebenkosten enthalten
Provisionspflichtig: nein
Küche: Pantry
Bad: Dusche
Terrasse: 1
Möbliert: nein
Haustiere: nicht gestattet
Letzte Modernisierung/ Sanierung: 2025
Qualität der Ausstattung: normal
Bezugsfrei ab: 01.05.2026
Bodenbelag: PVC
Zustand: gepflegt
Heizung: Fernwärme
Befeuerungsart: Fernwärme
Energieausweistyp: Dieses Gebäude unterliegt nicht den Anforderungen der GEG
Die von uns gemachten Informationen beruhen auf Angaben des Vermieters. Für die Richtigkeit und Vollständigkeit der Angaben kann keine Gewähr bzw. Haftung übernommen werden. Ein Zwischenverkauf und Irrtümer sind vorbehalten.
Wir weisen auf unsere Allgemeinen Geschäftsbedingungen hin. Durch weitere Inanspruchnahme unserer Leistungen erklären Sie die Kenntnis und Ihr Einverständnis.
Das könnte Ihnen auch gefallen














































