Coburg:
Dein neues City-Nest: Charmante 1,5 Zimmer mitten in Coburg! 🏠✨
Objekt-Nr.: 202506







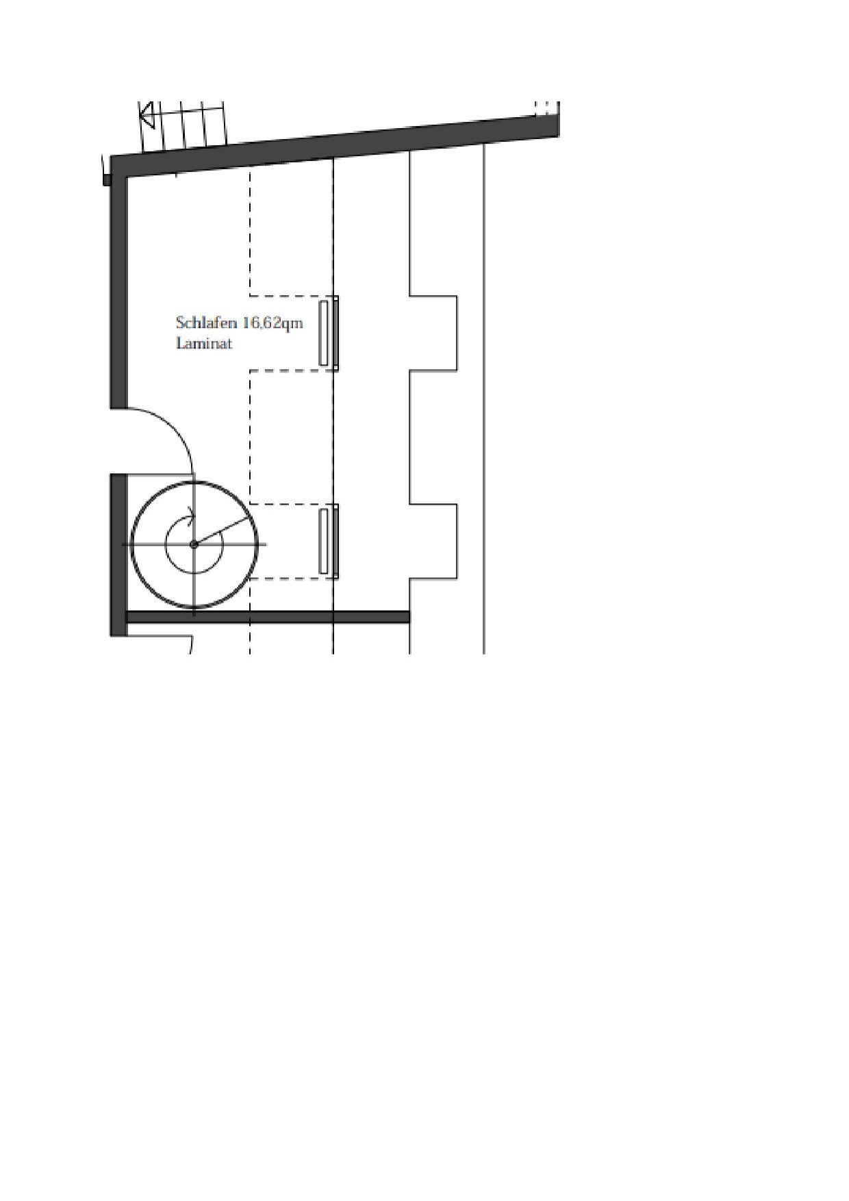
Grundriss WE 8 3. OG-1

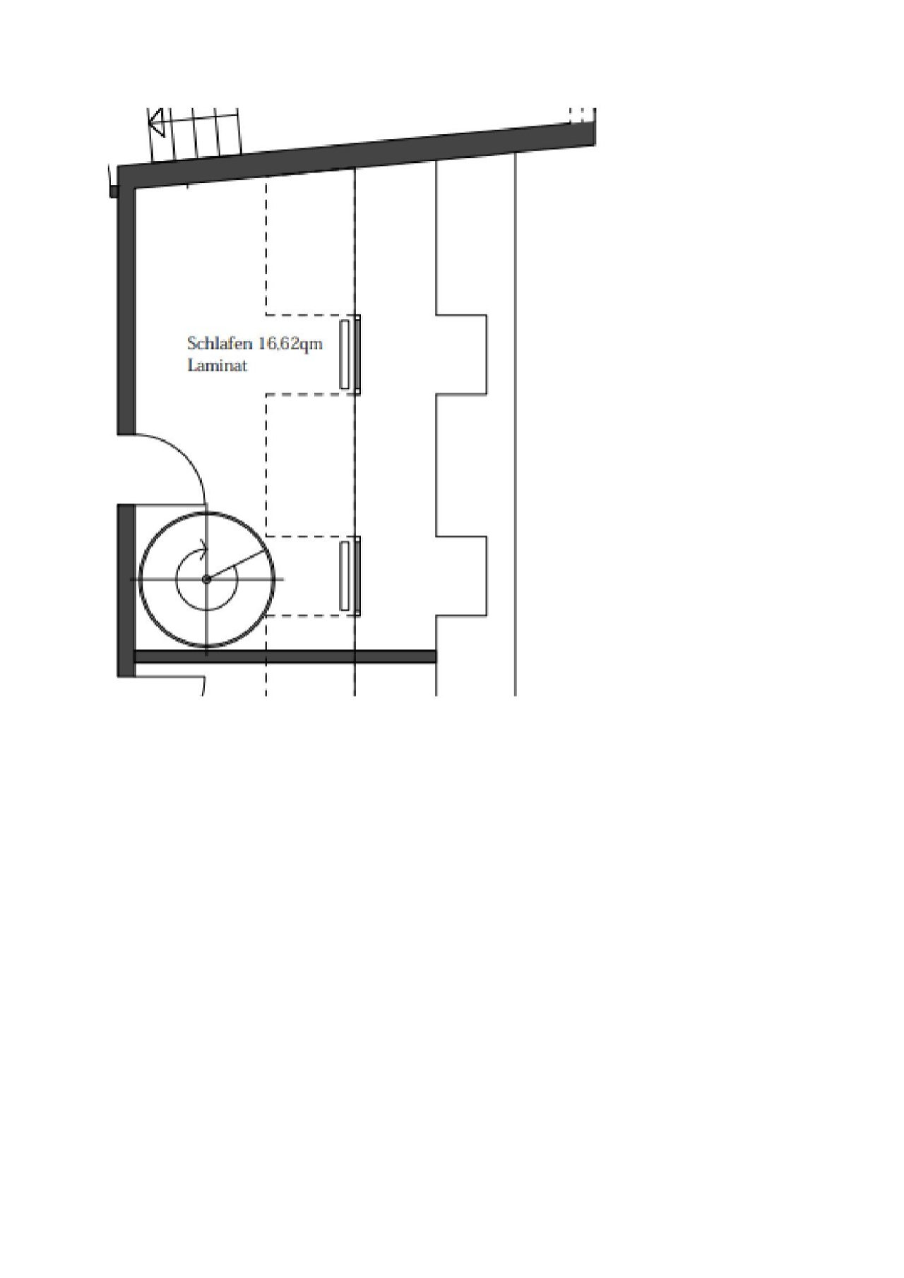
Grundriss WE 8 DG-1








mtl. Kaltmiete:
370 €
Wohnfläche ca.:
40 m²
Zimmeranzahl:
1,5
Dein neues City-Nest: Charmante 1,5 Zimmer mitten in Coburg! 🏠✨
Lust auf Leben im Zentrum?
Vergiss lange Wege und langweilige Vororte. Hier bekommst du 40 m² pure Gemütlichkeit direkt im Herzen von Coburg. Perfekt für dich (oder euch zwei), wenn du mittendrin statt nur dabei sein willst!
So wohnst du:
Diese Wohnung ist kein 08/15-Karton, sondern hat Charakter.
- Wohnen & Kochen: Ein offener Bereich, in dem du dich kreativ austoben kannst. Die Einbauküche steht schon bereit – Pasta-Abende können also sofort starten! 🍝
- Schlafen: Dein Schlafzimmer liegt gemütlich im Dachgeschoss. Der perfekte Rückzugsort zum Ausruhen.
- Wohlfühlen: Große Fenster sorgen für ordentlich Tageslicht und gute Laune. Das Bad erfüllt seinen Zweck, hat Tageslicht und eine Dusche für den schnellen Start in den Tag.
Green Living 🌱…
Frieren? Gibt's hier nicht. Dank Fernwärme hast du es immer kuschelig warm. Das Beste daran: Es ist effizient, umweltschonend und dein CO2-Fußabdruck freut sich gleich mit.
Deine Neighborhood:
Du fällst quasi aus der Haustür und hast alles, was du brauchst:
☕ Alltag: Bäcker, Cafe und Apotheke sind um die Ecke.
🚆 Mobilität: Bahnhof ist in wenigen Minuten erreichbar und Busse halten fast vor der Haustür
🍿 Freizeit: Kino, Theater oder Chillen im Hofgarten? Alles easy zu Fuß machbar und beim Samba-Fest und Open-Air auf dem Schloßplatz quasi mittendrin.
Koffer packen und einziehen!
Klingt nach deinem neuen Zuhause?
Dann warte nicht zu lange! Schreib uns einfach kurz und wir schauen uns die Wohnung zusammen an.
Wohnungstyp: Maisonette
Etage: 3
Etagenanzahl: 3
Warmmiete inkl. NK: 550 €
Nebenkosten: 180 €
Kaution / Genossenschaftsanteile: 740
Heizkosten: sind in den Nebenkosten enthalten
Provisionspflichtig: nein
Küche: Einbauküche
Bad: Dusche
Anzahl Schlafzimmer: 1
Anzahl Badezimmer: 1
Keller: ja
Alarmanlage: ja
Umgebung: Apotheke, Bahnhof, Bus, Einkaufsmöglichkeit, Kindergarten, Kino, Park
Möbliert: nein
Haustiere: nach Vereinbarung
Qualität der Ausstattung: normal
Bezugsfrei ab: 02.2026
Bodenbelag: Laminat
Zustand: gepflegt
Heizung: Fernwärme
Befeuerungsart: Fernwärme
Energieausweistyp: Dieses Gebäude unterliegt nicht den Anforderungen der GEG
Die von uns gemachten Informationen beruhen auf Angaben des Vermieters. Für die Richtigkeit und Vollständigkeit der Angaben kann keine Gewähr bzw. Haftung übernommen werden. Eine Zwischenvermietung und Irrtümer sind vorbehalten.
Wir weisen auf unsere Allgemeinen Geschäftsbedingungen hin. Durch weitere Inanspruchnahme unserer Leistungen erklären Sie die Kenntnis und Ihr Einverständnis.
Das könnte Ihnen auch gefallen















































